Refine Search

2300 Meridian Street, Falls Church, VA 22046

$2,660,000
  • 2300 Meridian Street, Falls Church, VA 22046 Main Photo

40 Total Photos [Click to View All]

ACTIVE
BEDS7 BATHS6 full 1 partial SQUARE FEET6,505 MLS#VAFX2279362
STATUSACTIVE PROPERTY TYPEResidential - Single Family SUBDIVISIONBRILYN PARK SCHOOLFAIRFAX COUNTY PUBLIC SCHOOLS

Property Description

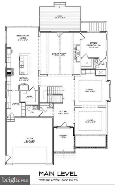
Haycock ES • Longfellow MS • McLean HS 2003 Meridian Place is a brand-new 7-bedroom, 6.5-bath modern prairie home offering 6,500+ finished square feet on a .28-acre lot. Expected delivery: Spring 2026. Built by local builder Omni-Metro Development LLC, the home features a practical, modern layout. Buyers may customize select finishes through January 1, 2026. The exterior includes Hardie-plank siding, stone accents, and a covered front porch. Inside, the main level offers 10-foot ceilings, 6” European white oak flooring, separate formal living and dining rooms with tray ceilings, and an open flow through the kitchen, breakfast area, and Great Room. The kitchen includes a Fisher & Paykel cooktop, Café appliances, quartz counters, a large island, and a walk-in pantry, leading naturally into the Great Room with natural wood beams and a gas fireplace. A Trex deck extends the living space outdoors. A main-level office/bedroom with a private bath and walk-in closet provides flexibility. Upstairs, the primary suite includes two walk-in closets and a bath with a stand-alone tub, oversized shower, and dual-sink vanity. Four additional bedrooms each have walk-in closets; two offer private en-suite baths and two share a Jack-and-Jill. The finished lower level includes a large recreation room with a wet bar, an exercise room, a separate media area, a private bedroom with a full bath, and ample storage. Additional features include a 2-car garage, mudroom with built-ins, and a second-floor laundry room. The home is close to Tysons, major commuter routes, dining, shopping, and entertainment. Photos are from a recently completed Omni-Metro Development project and reflect comparable finishes. Contact the listing agent for details or to schedule a private tour. Please do not walk the construction site without an appointment.

2300 Meridian Street | MLS# VAFX2279362

This single family home located at 2300 Meridian Street, Falls Church, VA 22046 is currently listed for sale with an asking price of $2,660,000. This property was built in 2026 and has 7 bedrooms and 6 full and 1 partial baths with 6505 sq. ft. Meridian Street is located in the BRILYN PARK subdivision within the FAIRFAX COUNTY PUBLIC SCHOOLS school district. Search BRILYN PARK real estate on www.isellrichmondhomes.com today.

Property Features

Property Type: Residential - Single Family
Basement: Yes
Basement: Full, Daylight, Partial, Interior Access, Walkout Stairs
Cooling: Central A/C
Fireplaces: 1
Fuel Type: Natural Gas
Garage: 2
Heating: Forced Air
Lot Size: 0.28 Acres
Stories: 3.0
Taxes: $10,744
Year Built: 2026

Feature Descriptions

Accessibility: 36"+ wide Halls
Additional Structures: Above Grade, Below Grade
Appliances: Built-In Microwave, Cooktop, Dishwasher, Disposal, Oven - Double, Range Hood, Refrigerator
Days on Site: 101
Exterior: HardiPlank Type, Stone
Lot Dimensions: 0.28 Acre(S)
Parking Notes: 2 Total Parking Spaces
Rooms: Living Room, Dining Room, Primary Bedroom, Sitting Room, Bedroom 3,Bedroom 4,Bedroom 5,Kitchen, Family Room, Foyer, Breakfast Room, Bedroom 1,Exercise Room, Laundry, Mud Room, Media Room, Bedroom 6,Bathroom 3,Primary Bathroom, Full Bath, Half Bath
Sewer: Public Sewer
SQFT Above Finished: 4705
SQFT Below Finished: 1800
SQFT Total Finished: 6505
Structure Type: Detached
Total Garage/Parking Spaces: 2
Water: Public

Room Sizes

Foyer: 11 x 9 Level - Main
Living Room: 15 x 13 Level - Main
Dining Room: 15 x 14 Level - Main
Bedroom 1: 12 x 12 Level - Main
Family Room: 20 x 19 Level - Main
Breakfast Room: 15 x 10 Level - Main
Kitchen: 20 x 15 Level - Main
Mud Room: 12 x 9 Level - Main
Primary Bedroom: 20 x 20 Level - Upper 1
Primary Bathroom: 10 x 15 Level - Upper 1
Bedroom 3: 12 x 15 Level - Upper 1
Bathroom 3: 9 x 5 Level - Upper 1
Bedroom 4: 12 x 15 Level - Upper 1
Full Bath: 9 x 5 Level - Upper 1
Bedroom 5: 12 x 15 Level - Upper 1
Bedroom 6: 12 x 16 Level - Upper 1
Sitting Room: 11 x 12 Level - Upper 1
Laundry: 7 x 8 Level - Upper 1
Family Room: 19 x 31 Level - Lower 1
Media Room: 19 x 14 Level - Lower 1
Full Bath: 11 x 5 Level - Lower 1
Bedroom 1: 15 x 15 Level - Lower 1
Exercise Room: 15 x 15 Level - Lower 1

Local Schools

High School: MCLEAN
Middle School: LONGFELLOW
Elementary School: HAYCOCK
School District: FAIRFAX COUNTY PUBLIC SCHOOLS

Listed By / Shown By

Listed By

Agency Name: RE/MAX Allegiance
Agency Phone: 7035221940

Shown By

Agent Name: Wes Atiyeh
Agent Phone: Cell: (804) 370-0401
Agency Title: Joyner Fine Properties

IDX logo

Estimate Your Payment

Estimated Payment

$ 15,121.57 per month $13,450.41 Principal & Interest $895.33 Property Tax $775.83 Homeowner's Insurance

Change Payment Information

%
years/fixed
yearly
yearly (est.)
(Payments are an estimate and may vary by lender)

Debbie Giambanco Senior Mortgage Loan Officer Office: (804) 591-4863 Toll-Free: (800) 285-5051 x4863 Fax: (804) 267-1433 NMLS#: 211850

Login to My Homefinder

Pixel